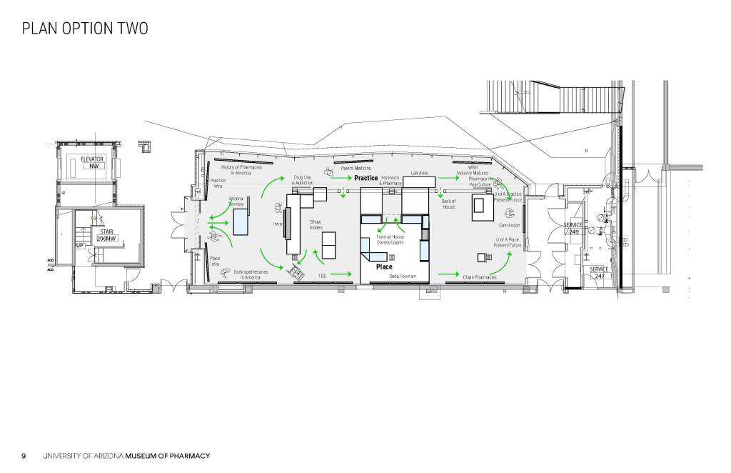
Coit Museum of Pharmacy
Client
Coit Museum of Pharmacy at the University of Arizona, 2020
Exhibit Creative Direction
Mark Pearlman
Concept Development
Cynthia Durand
These concepts for the Coit Museum of Pharmacy were developed in conjunction with the University of Arizona Department of Pharmacy, the major donor, and the content producer who would develop the museum digital content.
Content Mapping
Initial Concept
Concept Development






































